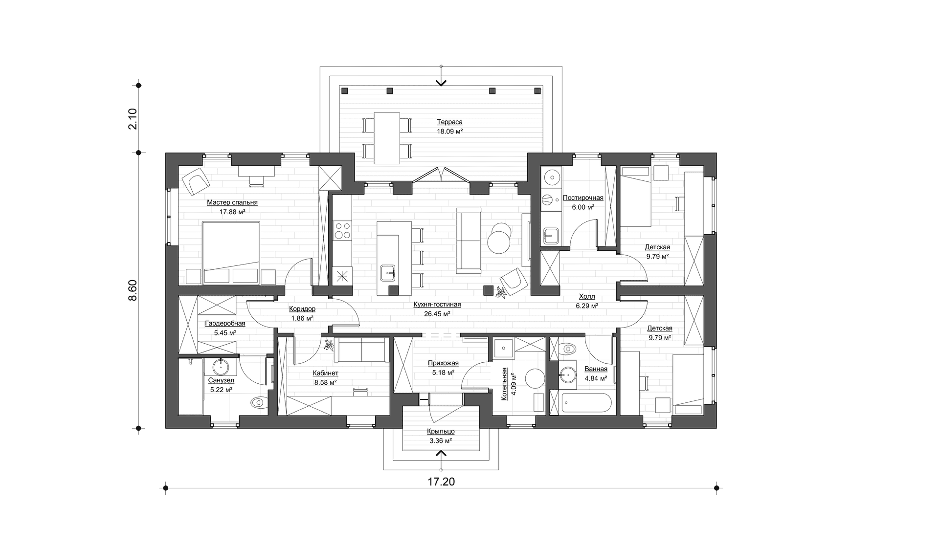
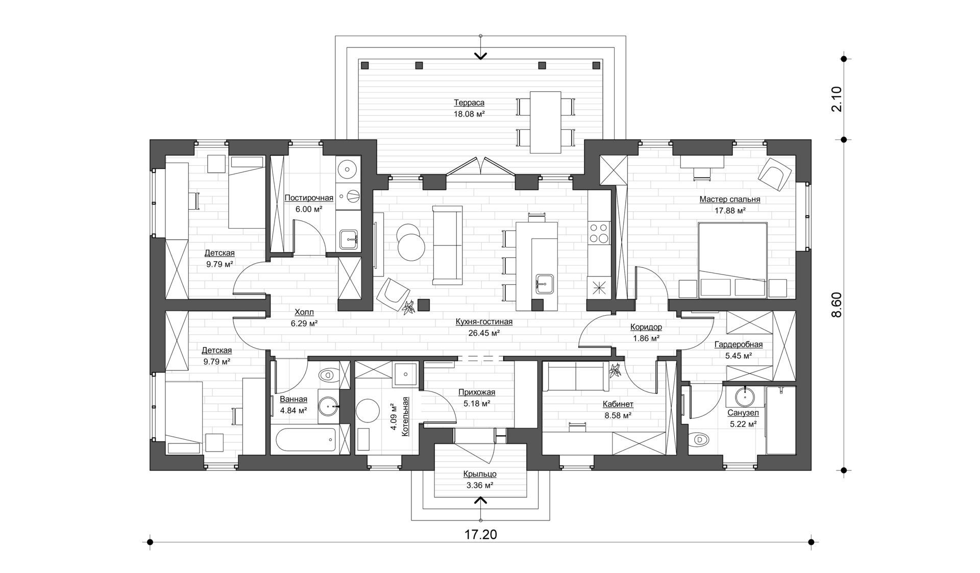
Характеристики дома
- Гостиная с открытой кухней и обеденной зоной: Просторная и светлая гостиная является центром дома, где приятно проводить время с семьей и друзьями. Открытая кухня, гармонично соединяется с обеденной зоной. Из гостиной есть выход на террасу, где можно наслаждаться свежим воздухом и отдыхать на природе.
- Мастер-спальня с гардеробной: Мастер-спальня — это отдельное уединённое пространство с просторной гардеробной. Это место для полного отдыха и комфорта. Гардеробная рядом с спальней позволяет удобно хранить вещи, создавая порядок и организованность.
- Две дополнительные спальни: Эти комнаты идеально подойдут для детей, гостей или могут быть использованы как рабочие кабинеты. Все спальни имеют достаточное пространство и естественное освещение, что делает их удобными и комфортными.
- Отдельный кабинет: В доме предусмотрен отдельный кабинет, который идеально подходит для работы из дома или для занятия хобби. Это место обеспечит вам тишину и уединение для продуктивной работы.
- Кладовая рядом с кухней: Для удобства хранения продуктов и бытовых принадлежностей рядом с кухней расположена дополнительная кладовая. Это позволяет поддерживать порядок в доме и экономить место в других помещениях.
- Две ванные комнаты: В доме предусмотрены две ванные комнаты. Одна из них примыкает к мастер-спальне, а другая находится рядом с двумя дополнительными спальнями. Это повышает удобство и комфорт для всей семьи.
- Прачечная и котельная: Дом включает отдельную прачечную для удобства в быту, а также котельную, в которой собрано сердце дома. Практичная и функциональная планировка позволяет легко перемещаться по дому.
Преимущества одноэтажного дома:
- Энергоэффективность: Современные строительные материалы и качественное утепление обеспечивают отличную теплоизоляцию и помогают снизить расходы на отопление.
- Комфорт и удобство: Просторные и светлые комнаты создают атмосферу уюта и комфорта для всех членов семьи.
- Функциональная планировка: Продуманная планировка делает дом удобным для повседневной жизни, а отдельный кабинет и кладовая добавляют дополнительную функциональность.
Этот одноэтажный дом площадью 110 м² — идеальный выбор для тех, кто ценит комфорт, современный стиль и практичность. Дом станет отличным местом для счастливой и комфортной жизни вашей семьи.
Дом идеально подходит для семьи с детьми. Для родителей, которые «за» сепарирование и взросление наших детей. Именно поэтому мы разделили родительский много—функциональный блок с кабинетом, гардеробной, душевой (с возможностью установить хамам) от активного, яркого и самое главное самостоятельного детского блока. Мы сохранили сердце дома — общую зону приема пищи и досуга с камином, винилом, кинопрокатами и выходом в зону барбекю.