Перейти к содержимому

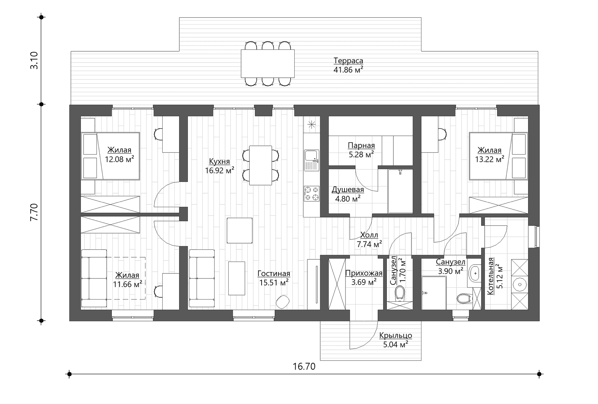
Турмалин 102 м²

3 спальни
3 санузла
Терраса

Турмалин 102 м²

3 спальни
3 санузла
Терраса

Основные характеристики

  • Гостиная с открытой кухней

Стоимость проекта:

от 950 BYN

Стоимость строительства:

от 175 502 BYN
Возможна рассрочка
Описание дома

Уютный одноэтажный дом с оптимальной планировкой и площадью. Отлично подойдет для комфортного проживания и отдыха семьи из 3-4 человек.

Просторная кухня-гостиная с высотой потолка до 3.8 м визуально расширяет пространство, а панорамное остекление создает ощущение единения с природой и наполняет помещение солнечным светом.

Планировочные решения

Площадь дома

Бесплатная консультация с архитектором
Нажимая на кнопку, вы соглашаетесь с политикой конфиденциальности
  • Количество этажей
    1 этаж
  • Общая площадь (с террасами и навесом)
    148,52
  • Площадь с учётом террас и крылец
    115,69
  • Тип участка
    Широкий
  • Количество спален
    3
  • Количество сан узлов
    3
  • Тип кровли
    Скатная
  • Наличие сауны
    Да
  • Навес для авто
    Нет
  • Терраса
    Да
  • Количество этажей
    1 этаж
  • Общая площадь (с террасами и навесом)
    148,52
  • Площадь с учётом террас и крылец
    115,69
  • Тип участка
    Широкий
  • Количество спален
    3
  • Количество сан узлов
    3
  • Тип кровли
    Скатная
  • Наличие сауны
    Да
  • Навес для авто
    Нет
  • Терраса
    Да
Стоимость строительства
Этапы

Проектирование — бесплатно при покупке любой стадии строительства

1. Закрытый контур — фундамент

  • Геодезическая разбивка
  • Земляные работы
  • Свайно-ростверковый фундамент
  • Монтаж закладных для коммуникаций
  • Черновой пол
  • Несущие стены КББлок 300 мм
  • Внутренние стены КББлок 120 мм
  • Вентиляционные каналы КББлока
  • Монолитные перемычки и пояса
  • Обработка пиломатериала биозащитными составами
  • Кровля с покрытием металлочерепицы «Топ Дах» матовой 0,5мм
  • Водосточная система «AquaSystem Comfort»
Узнать
стоимость
Этапы

Проектирование — бесплатно при покупке любой стадии строительства

1. Закрытый контур

2. Теплый закрытый контур

  • Свето-прозрачные конструкции:
    - Профиль Kommerling 76мм
    - Остекление: 4СИ-20-4М1-18И4: Стеклопакет 50мм + мультистекло + энерго
    - Тонировка: Мультистекло LARTA HOME-Salar Neitral – АНТИЖАРА
    - Фурнитура: Roto NX
    - Окно на террасе системы PremiDoor KBE
  • Монтаж входной двери
  • Электромонтажные работы
  • Внутренние штукатурные работы
  • Утепление перекрытия и кровли второго света 250мм
  • Устройство фасадной отделки с утеплением 100мм декоративной штукатуркой
  • Устройство карнизного свеса с подшивкой металлическими софитами «Docke»
  • Монтаж труб водост очной системы «AquaSystem Comfort»
  • Прокладка канализации, водоснабжения, обустройство системы отопления теплыми полами
  • Обустройство котельной
  • Чистовая стяжка пола
  • Отмостка без финишного покрытия
Узнать
стоимость
Этапы

Проектирование — бесплатно при покупке любой стадии строительства

1. Закрытый контур — фундамент

2. Теплый закрытый контур

3. Чистовая отделка внутри и снаружи

Индивидуальный
расчет
3 месяца

Фундамент, черновая стяжка, стены, кровля.

Показать этапы строительства

Проектирование — бесплатно при покупке любой стадии строительства

1. Закрытый контур — фундамент

  • Геодезическая разбивка
  • Земляные работы
  • Свайно-ростверковый фундамент
  • Монтаж закладных для коммуникаций
  • Черновой пол
  • Несущие стены КББлок 300 мм
  • Внутренние стены КББлок 120 мм
  • Вентиляционные каналы КББлока
  • Монолитные перемычки и пояса
  • Обработка пиломатериала биозащитными составами
  • Кровля с покрытием металлочерепицы «Топ Дах» матовой 0,5мм
  • Водосточная система «AquaSystem Comfort»
Узнать
стоимость
7 месяцев

Дом утеплён, оштукатурены стены. Разведена черновая электрика, отопление, водоснабжение, канализация.

Показать этапы строительства

Проектирование — бесплатно при покупке любой стадии строительства

1. Закрытый контур

2. Теплый закрытый контур

  • Свето-прозрачные конструкции:
    - Профиль Kommerling 76мм
    - Остекление: 4СИ-20-4М1-18И4: Стеклопакет 50мм + мультистекло + энерго
    - Тонировка: Мультистекло LARTA HOME-Salar Neitral – АНТИЖАРА
    - Фурнитура: Roto NX
    - Окно на террасе системы PremiDoor KBE
  • Монтаж входной двери
  • Электромонтажные работы
  • Внутренние штукатурные работы
  • Утепление перекрытия и кровли второго света 250мм
  • Устройство фасадной отделки с утеплением 100мм декоративной штукатуркой
  • Устройство карнизного свеса с подшивкой металлическими софитами «Docke»
  • Монтаж труб водост очной системы «AquaSystem Comfort»
  • Прокладка канализации, водоснабжения, обустройство системы отопления теплыми полами
  • Обустройство котельной
  • Чистовая стяжка пола
  • Отмостка без финишного покрытия
Узнать
стоимость
12 месяцев

Дом полностью готов к проживанию.
Индивидуальный расчет после согласования дизайна интерьера

Показать этапы строительства

Проектирование — бесплатно при покупке любой стадии строительства

1. Закрытый контур — фундамент

2. Теплый закрытый контур

3. Чистовая отделка внутри и снаружи

Индивидуальный расчет

Стоимость проектирования

  • Архитектурный проект
    950 BYN
    Архитектурный проект - раздел строительной документации, содержащий информацию о объёмно-планировочном решении Вашего будущего дома.
    1.Общие данные, технико-экономические показатели, пояснительная записка;
    2.Поэтажные планы с экспликацией помещений (мебели, кладочные, маркировочные);
    3.Разрезы (поперечный и продольный) с составом ограждающих конструкций
    4.План кровли;
    5.Фасады в осях с цветовым решением фасадов;
    6.Экспликация полов. Ведомость заполнения проёмов;
    7.3Д виды.
    Турмалин 102 м²
  • Конструктивные решения
    + 1 550 BYN

    Конструктивные решения - раздел строительного проекта, содержащий детальную проработку несущих конструкций 
    с подсчётом спецификации.

    1. Общие данные, технические указания и рекомендации по выполнению строительно-монтажных работ;
    2. Планы и сечения фундаментов, спецификации;
    3. Планы расположения элементов перекрытий. Спецификации;
    4. Планы расположения элементов крыши. План стропил. Спецификации;
    5. Схемы устройства конструктивных элементов, требующих детального изображения (монолитный пояс, монолитные участки);
    6. Чертежи узлов и деталей по всем конструктивным элементам;
    7. Спецификация и сечения перемычек;
    8. Схема утепления фасадов;
    9. 3Д Виды конструктива дома.
    Конструктивные решения
    Конструктивные решения
    Конструктивные решения
  • Генеральный план
    + 650 BYN

    Генеральный план - раздел строительного проекта, содержащий план с точным расположения и привязкой к местности, дорогам, окружающим строениям, существующим коммуникациям, противопожарным разрывам.

    1. Разбивочный план. Ситуационная схема;
    2. Вертикальная планировка;
    3. Схема наружных инженерных сетей.
    Генеральный план
  • Проект инженерных сетей
    + 1 250 BYN

    Инженерные сети - раздел технических решений по внутренней канализации, отоплению, водоснабжению и устройству котельной с подробной спецификацией.

    1. Пояснительная записка. Расчёты теплопотерь
    2. План и схема раскладки труб канализации;
    3. План и схемы системы водоснабжения;
    4. План и схемы системы отопления;
    5. Схемы устройства котельной;
    6. Спецификация изделий и материалов.
    Проект инженерных сетей
    Проект инженерных сетей
    Проект инженерных сетей
  • Система вентиляции и кондиционирования
    + 2 050 BYN

    Это система, которая работает за счёт приточно-вытяжной установки, состоящей из вентиляторов, фильтров и теплообменника. С помощью воздуховодов такая установка подаёт свежий воздух в одни помещения и выкачивает отработанный из других.

    1.Таблица воздушных балансов (расчёт) для вентиляции и кондиционирования;
    2.План и аксонометрическая схема системы вентиляции;
    3.Аксонометрическая схема системы Вентиляции;
    4.Узлы вент-коллекторов и вентустановки;
    5.План и аксонометрическая схема система кондиционирования
    6.Схемы монтажа вентустановки и кондиционирования;
    7.Спецификация изделий и материалов.

    Система вентиляции и кондиционирования
    Система вентиляции и кондиционирования
    Система вентиляции и кондиционирования
  • Геологические изыскания (Геология)
    + 850 BYN

    Изучение природных условий и особенностей грунта на участке, где планируется строительство. 

    Это поможет избежать ошибок в проектировании дома и предотвратить такие проблемы, как трещины в фасаде или деформации строения. Геологические изыскания также позволяют определить тип грунта, что влияет на выбор фундамента и его стоимость. Без проведения геологических изысканий есть риск возникновения опасных ситуаций, таких как обрушение здания из-за оползней или возникновение плесневых грибков.

    Геологические изыскания (Геология)
    Геологические изыскания (Геология)
  • Геодезические изыскания (Топосъёмка)
    + 650 BYN

    Это комплекс геодезических работ, направленных на детальное изучение территории (создание точного плана местности, отображающий рельеф, инфраструктуру, подземные коммуникации и иные элементы). 

    Этот процесс включает как полевые исследования, так и камеральную обработку данных, результатом которой становится инженерно-топографический план.

    Геодезические изыскания (Топосъёмка)
    Геодезические изыскания (Топосъёмка)
  • Технический дизайн проект
    + 5 050 BYN

    Технический дизайн проект - это комплект чертежей, который решает задачи по оптимизации пространства, обеспечению комфорта и безопасности. Данный раздел включает в себя проектирование, расчёты и подбор материалов с учётом функциональности, эргономики и технических требований.

    1.Схема расстановки мебели
    2.Схема водоснабжения
    3.Схема потолков
    4.Схема освещения. Схема освещения в группах
    5.Схема электрики
    6.Схема расположения кондиционеров
    7.Развёртки стен
    8.Схемы монтажа. Деталировочные виды

    Технический дизайн проект
    Технический дизайн проект
    Технический дизайн проект
Итоговая сумма: 0
Итоговая сумма:
0

Полный обзор дома

Полный разбор проекта, как мы проектировали, строили и создавали этот дом

Смотрите на YouTube

Посмотреть обзор
Я лично слежу за каждым этапом строительства
Наша компания и я как собственник несем ответственность до конца и даже совершив ошибку — мы исправим её, а потом решаем чья ответственность. Мы сами проектируем и строим дома своими силами. Один ответственный за все!
Беликов Алексей
Основатель и собственник строительной компании ООО «Беликов Монолит»